HERENT: In de mooie en gegeerde residentiële wijk ‘Schoonzicht’ wordt een zeer ruime (358 m² bebouwde oppervlakte) nieuwbouw-villa gebouwd op een mooi en uiterst rustig gelegen perceel van 7a 12ca.
De werken worden opgestart voorjaar 2026, de oplevering wordt voorzien september 2027, m.a.w. in deze fase van het bouwproces is volledige personalisatie en keuze qua afwerking nog mogelijk.De verkoop geschiedt onder de wet Breyne en is betaalbaar in schijven naargelang de werken vorderen. De verkoopprijs bestaat voor € 445.000 uit grondprijs (+ registratie) en voor € 1.000.000 uit bouwprijs (+ 21% BTW).
De woning wordt zeer volledig afgewerkt met hoogwaardige & hedendaagse materialen (vloerverwarming, parketten, dubbele glazen deur leefruimte, op het niveau van de living deuren van 2,80m hoogte, badkamermeubilair op maat, inbouwspots, terras & inrit aangelegd, warmtepomp, zonnepanelen, D ventilatie, …).
De woning is ingedeeld als volgt:
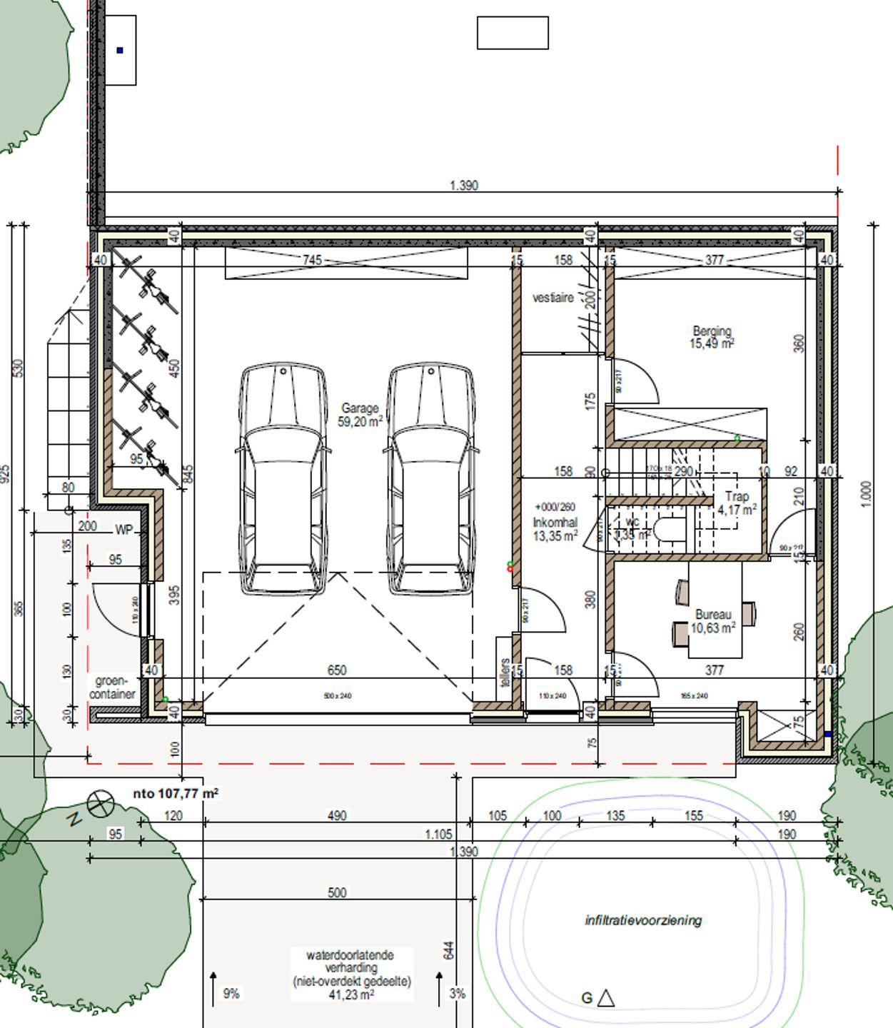
-op het gelijkvloers: een zeer ruime garage (2 wagens) met extra bergingsmogelijkheden (59m²), een inkomhal met vestiaire, een apart wc-lokaal, een bureauruimte (11m²) en een ruime berging (15,5m²). Voor de garage is er plaats voor 2 extra wagens.
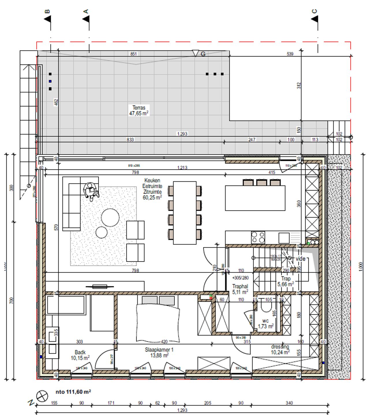
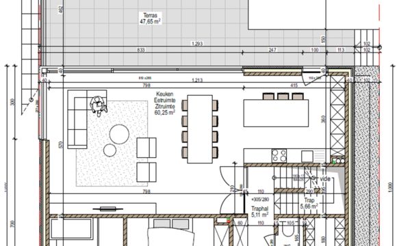
-op de 1ste verdieping: een living/eetplaats met aansluitend een volledig ingerichte keuken met eiland (totaal 60m²). De achterzijde van de leefruimte bestaat quasi volledig uit glazen schuifwanden met toegang tot een zeer ruim terras (48m²) en de tuin.
Via de traphal, voorzien van een apart wc-lokaal en ruimte voor een extra vestiaire, heeft u toegang tot de masterbedroom (34m²) bestaande uit een volledig ingerichte badkamer (bad, inloopdouche, 2 wastafels), slaapkamergedeelte en een dressinghoek (10m²).
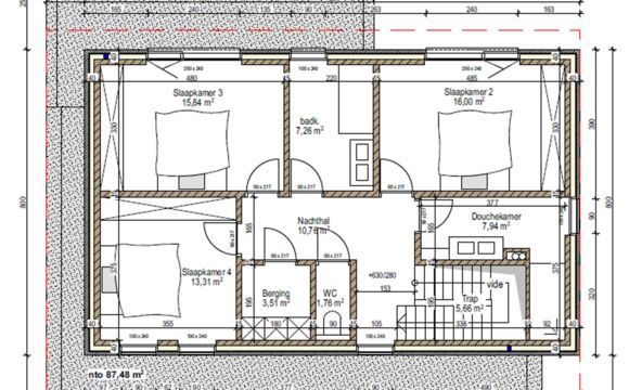
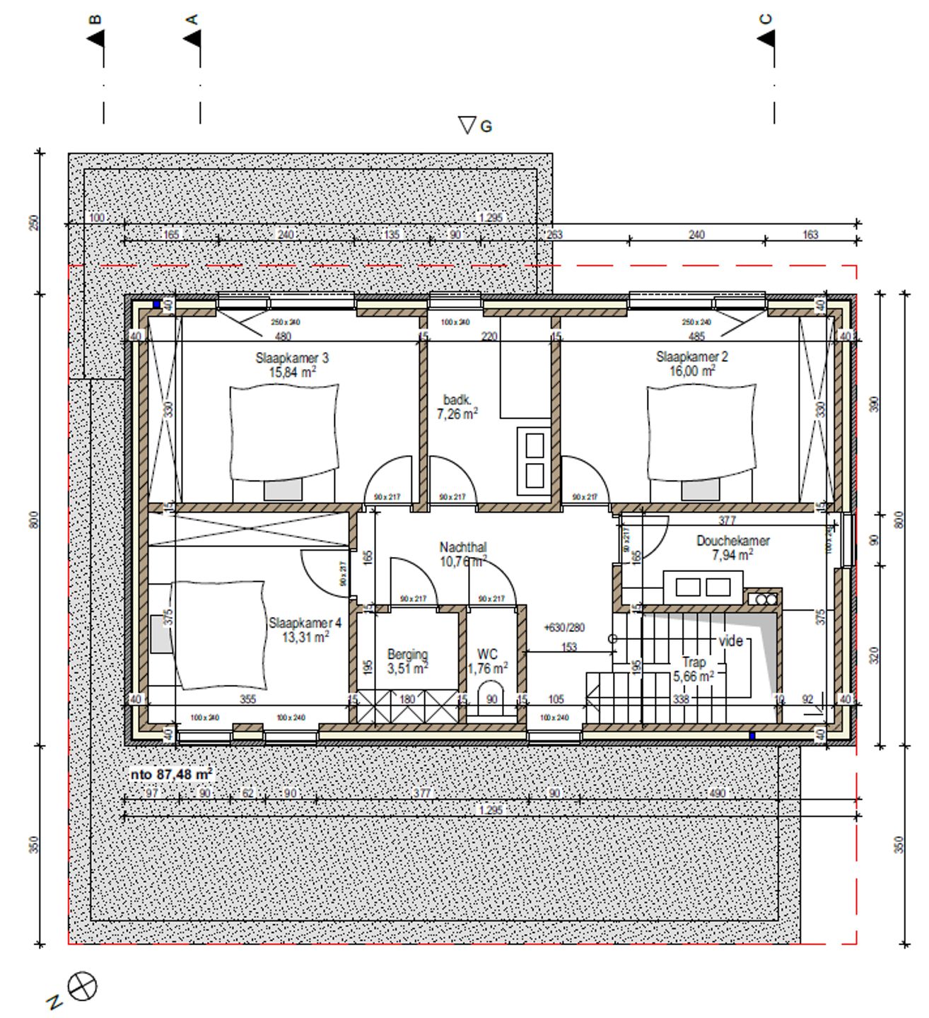
-op de 2de verdieping: een grote nachthal/traphal, 3 ruime slaapkamers (16-16-13 m²), een wc-lokaal, een berging, een badkamer (7m², bad, 2 wastafels) en een douchekamer (8m², inloopdouche, 2 wastafels).
De werken worden opgestart voorjaar 2026, de oplevering wordt voorzien september 2027, m.a.w. in deze fase van het bouwproces is volledige personalisatie en keuze qua afwerking nog mogelijk.De verkoop geschiedt onder de wet Breyne en is betaalbaar in schijven naargelang de werken vorderen. De verkoopprijs bestaat voor € 445.000 uit grondprijs (+ registratie) en voor € 1.000.000 uit bouwprijs (+ 21% BTW).
De woning wordt zeer volledig afgewerkt met hoogwaardige & hedendaagse materialen (vloerverwarming, parketten, dubbele glazen deur leefruimte, op het niveau van de living deuren van 2,80m hoogte, badkamermeubilair op maat, inbouwspots, terras & inrit aangelegd, warmtepomp, zonnepanelen, D ventilatie, …).
De woning is ingedeeld als volgt:
-op het gelijkvloers: een zeer ruime garage (2 wagens) met extra bergingsmogelijkheden (59m²), een inkomhal met vestiaire, een apart wc-lokaal, een bureauruimte (11m²) en een ruime berging (15,5m²). Voor de garage is er plaats voor 2 extra wagens.
-op de 1ste verdieping: een living/eetplaats met aansluitend een volledig ingerichte keuken met eiland (totaal 60m²). De achterzijde van de leefruimte bestaat quasi volledig uit glazen schuifwanden met toegang tot een zeer ruim terras (48m²) en de tuin.
Via de traphal, voorzien van een apart wc-lokaal en ruimte voor een extra vestiaire, heeft u toegang tot de masterbedroom (34m²) bestaande uit een volledig ingerichte badkamer (bad, inloopdouche, 2 wastafels), slaapkamergedeelte en een dressinghoek (10m²).
-op de 2de verdieping: een grote nachthal/traphal, 3 ruime slaapkamers (16-16-13 m²), een wc-lokaal, een berging, een badkamer (7m², bad, 2 wastafels) en een douchekamer (8m², inloopdouche, 2 wastafels).