HERENT : Dans le beau et recherché quartier résidentiel « Schoonzicht », une villa neuve très spacieuse (358 m² de surface bâtie) sera construite sur un magnifique terrain de 7a 12ca, situé dans un environnement extrêmement calme.
Les travaux débuteront au printemps 2026 et la livraison est prévue pour septembre 2027. À ce stade du projet, une personnalisation complète ainsi que le choix des finitions sont encore possibles.
La vente est réalisée sous le régime de la loi Breyne et le paiement s’effectue par tranches, en fonction de l’avancement des travaux.
Le prix de vente se compose de 445.000 € pour le terrain (+ droits d’enregistrement) et de 1.000.000 € pour la construction (+ 21 % de TVA). La maison sera achevée avec des matériaux haut de gamme et contemporains (chauffage par le sol, parquet, porte vitrée double vers le séjour, portes intérieures de 2,80 m de hauteur au niveau du living, mobilier de salle de bains sur mesure, spots encastrés, terrasse et allée aménagées, pompe à chaleur, panneaux solaires, ventilation système D, …). La maison est composée comme suit : Rez-de-chaussée :
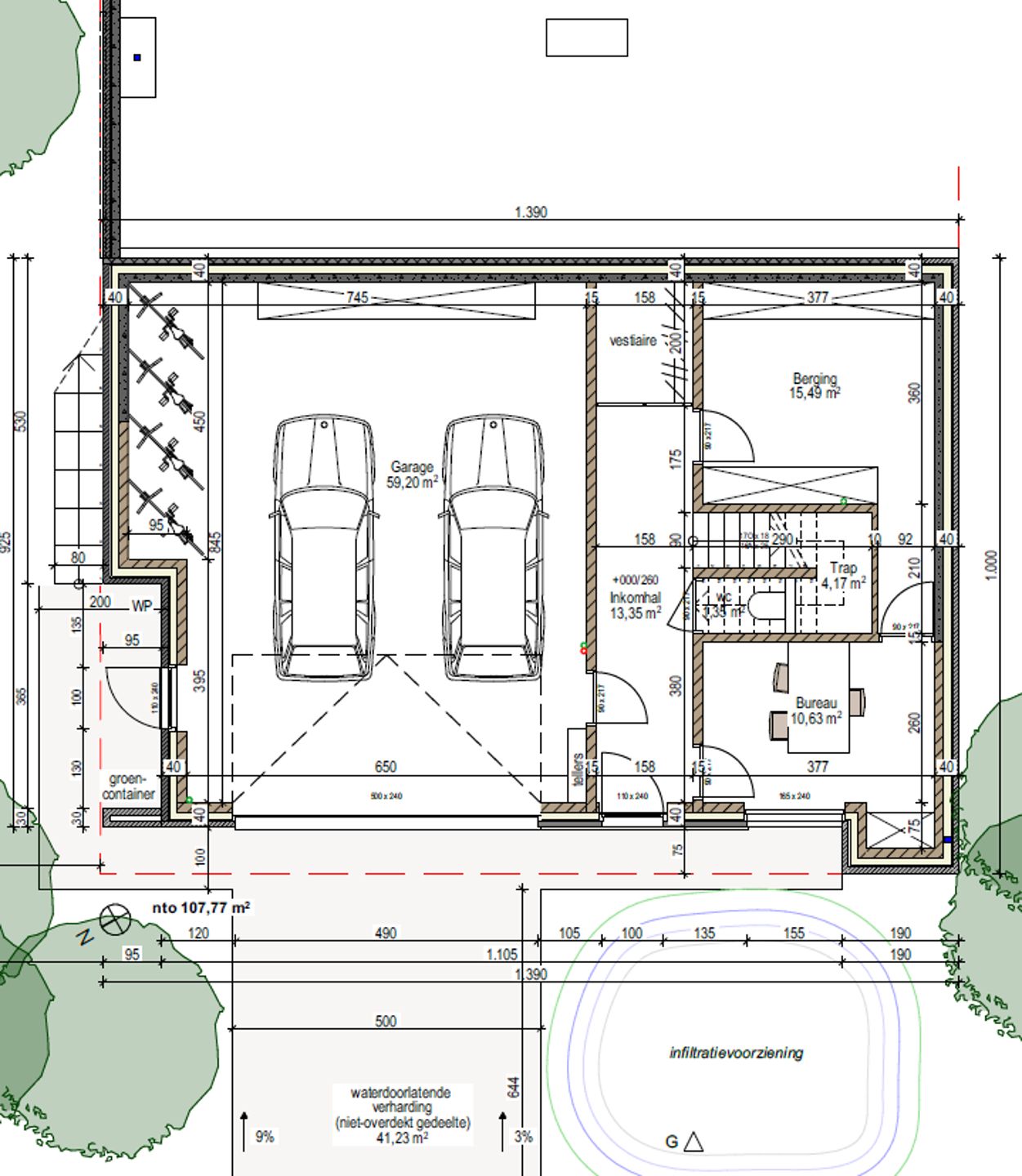
Un très grand garage pour 2 voitures avec espaces de rangement supplémentaires (59 m²), un hall d’entrée avec vestiaire, un WC séparé, un bureau (11 m²) et un grand local de rangement (15,5 m²). Devant le garage, il y a également de la place pour 2 voitures supplémentaires. 1er étage :
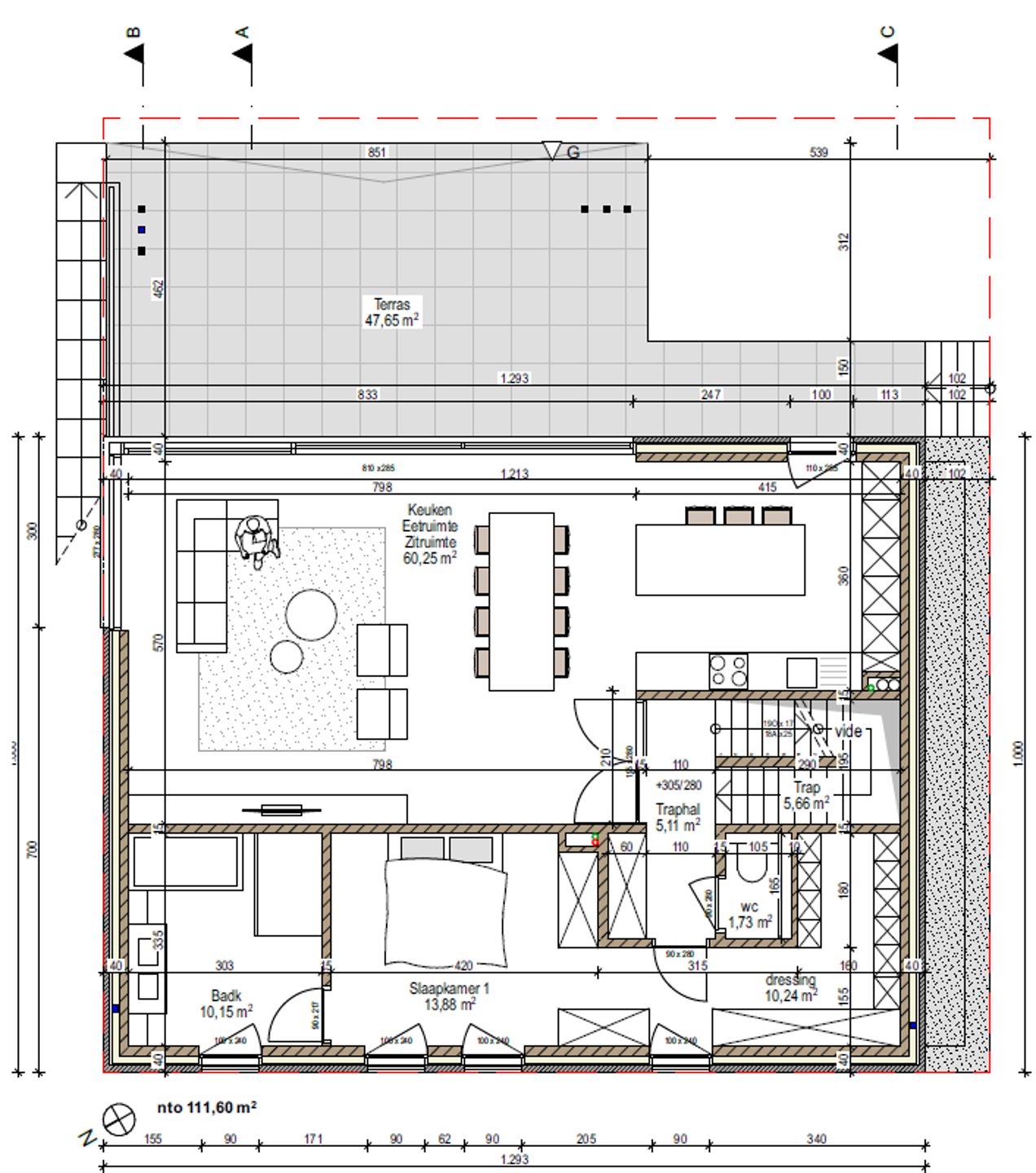
Un séjour/salle à manger avec cuisine entièrement équipée avec îlot central (ensemble 60 m²). L’arrière de l’espace de vie est presque entièrement composé de baies vitrées coulissantes donnant accès à une très grande terrasse (48 m²) et au jardin.
Via le hall d’escalier, équipé d’un WC séparé et d’un espace pour vestiaire supplémentaire, vous accédez à la chambre parentale (34 m²) comprenant une salle de bains entièrement équipée (baignoire, douche à l’italienne, double lavabo), l’espace nuit et un dressing (10 m²). 2e étage :
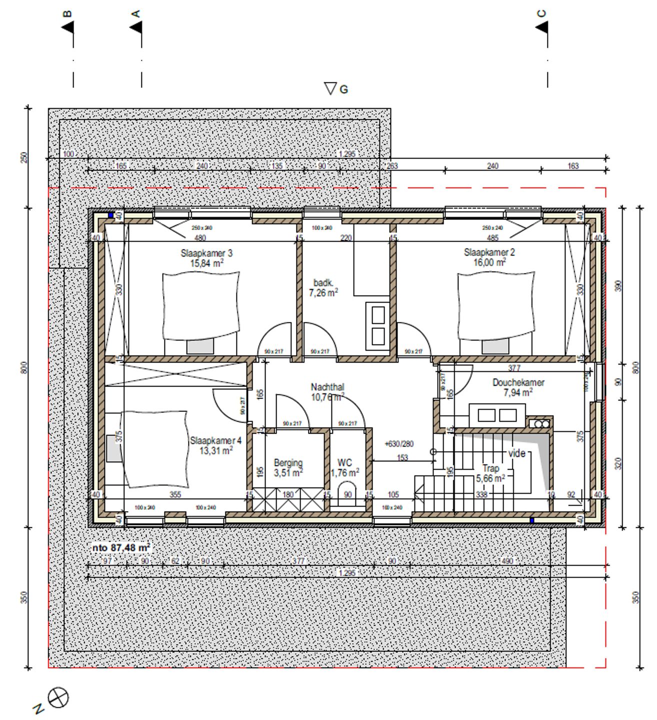
Un grand hall de nuit / cage d’escalier, 3 chambres spacieuses (16 – 16 – 13 m²), un WC séparé, un local de rangement, une salle de bains (7 m², baignoire, double lavabo) et une salle de douche (8 m², douche à l’italienne, double lavabo).
La vente est réalisée sous le régime de la loi Breyne et le paiement s’effectue par tranches, en fonction de l’avancement des travaux.
Le prix de vente se compose de 445.000 € pour le terrain (+ droits d’enregistrement) et de 1.000.000 € pour la construction (+ 21 % de TVA). La maison sera achevée avec des matériaux haut de gamme et contemporains (chauffage par le sol, parquet, porte vitrée double vers le séjour, portes intérieures de 2,80 m de hauteur au niveau du living, mobilier de salle de bains sur mesure, spots encastrés, terrasse et allée aménagées, pompe à chaleur, panneaux solaires, ventilation système D, …). La maison est composée comme suit : Rez-de-chaussée :
Un très grand garage pour 2 voitures avec espaces de rangement supplémentaires (59 m²), un hall d’entrée avec vestiaire, un WC séparé, un bureau (11 m²) et un grand local de rangement (15,5 m²). Devant le garage, il y a également de la place pour 2 voitures supplémentaires. 1er étage :
Un séjour/salle à manger avec cuisine entièrement équipée avec îlot central (ensemble 60 m²). L’arrière de l’espace de vie est presque entièrement composé de baies vitrées coulissantes donnant accès à une très grande terrasse (48 m²) et au jardin.
Via le hall d’escalier, équipé d’un WC séparé et d’un espace pour vestiaire supplémentaire, vous accédez à la chambre parentale (34 m²) comprenant une salle de bains entièrement équipée (baignoire, douche à l’italienne, double lavabo), l’espace nuit et un dressing (10 m²). 2e étage :
Un grand hall de nuit / cage d’escalier, 3 chambres spacieuses (16 – 16 – 13 m²), un WC séparé, un local de rangement, une salle de bains (7 m², baignoire, double lavabo) et une salle de douche (8 m², douche à l’italienne, double lavabo).