Bien exceptionnel à Haacht

Scharent 10, 3150 Haacht Bekijk op waze
€ 735.000
  • 4 Chambres
  • 2 Salles de bains
  • 238 m² Superficie
  • 595 m² Superficie
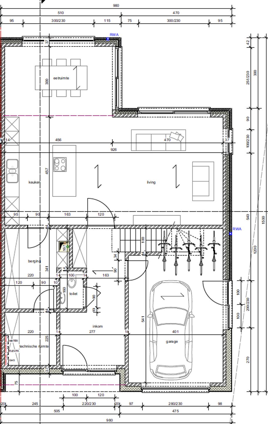
Haacht : Très spacieuse maison neuve trois façades (238 m² de surface bâtie) comprenant au total 4 grandes chambres et 2 salles de bains, située sur un beau terrain orienté plein sud de 5 ares 59 centiares, dans une rue calme tout en étant à distance de marche du centre de Haacht. La maison est agencée comme suit : Au rez-de-chaussée :
Un grand hall d’entrée avec cage d’escalier et WC séparé, un spacieux garage avec espace supplémentaire pour le rangement de vélos, un magnifique et vaste séjour/salle à manger ouvert (56 m²) avec une cuisine ouverte entièrement équipée avec îlot central. Celle-ci donne accès à un débarras/buanderie séparé(e) (8 m²) ainsi qu’à un local technique distinct (5 m²).
Le séjour bénéficie d’une très belle luminosité grâce à trois grandes baies vitrées coulissantes. Au premier étage :
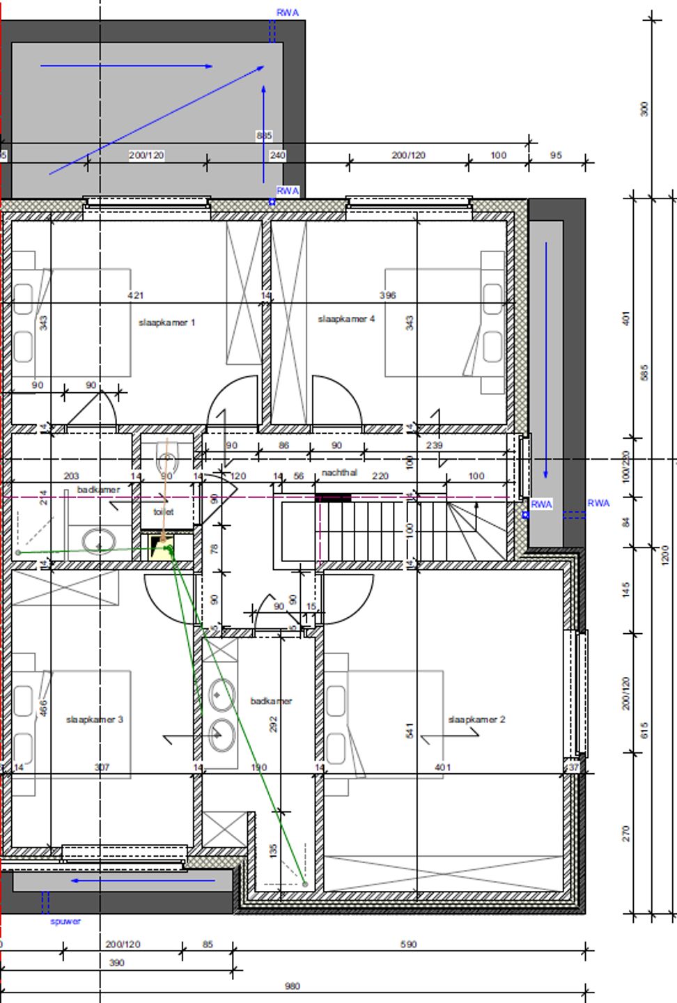
Un grand hall de nuit avec cage d’escalier, 4 belles et spacieuses chambres (21,5 – 14,5 – 14,5 – 13,5 m²), un WC séparé et 2 salles de bains distinctes, dont une salle de bains attenante à une chambre (4,5 m² avec lavabo simple et douche à l’italienne) et une salle de bains principale (7,5 m² avec double lavabo et grande douche à l’italienne). La maison est très soigneusement finie et conçue pour être particulièrement économe en énergie (pompe à chaleur, chauffage par le sol, 12 panneaux solaires, niveau E < E30).
La livraison entièrement achevée est prévue pour l’automne 2026.
Vente sous régime TVA (valeur du terrain : 245.000 €, valeur de la construction : 490.000 €).
  1. Informations financières

    Prix
    € 735.000
    Référence
    7523008
  2. Informations générales

    Disponible
    à la livraison
    Construction
    3 façades
    Jardin
    Oui
    Garage
    Oui
    Parking intérieur
    Oui
  3. Localisation géographique

    Environnement
    Central
    Commerces à
    850 m
    Transports publics à
    220 m
    Transports publics à proximité
    Oui
  4. Dimensions

    Superficie terrain
    595 m²
    Surface habitable
    238 m²
  5. Aménagement

    Salle de séjour
    56 m²
    Cuisine
    Oui (amer. super-équipée)
    Chambre 1
    22 m²
    Chambre 2
    15 m²
    Chambre 3
    15 m²
    Chambre 4
    14 m²
    Salle de bain
    (tout confort)
    Buanderie
    Oui
  6. Energie

    Type de chauffage
    Pompe à chaleur
  7. Presciptions urbanistiques

    Informations urbanistiques
    En attente
    Affectation
    Zone d'habitat
    Permis de bâtir
    Oui
    Intimation en justice
    Non communiqué
    G-score
    A
    P-score
    A
    Permis de lotir
    Non communiqué
    Droit de préemption
    Non
  8. Downloads

    Grondplan
Bien exceptionnel à vendre a Haacht

Bien exceptionnel à Haacht

€ 735.000
  • 4 Chambres
  • 2 Salles de bains
  • 238 m² Superficie
Tel. kantoor: +32 (0) 2/305.30.03

Vos données

Informations de contact